ONE'S CUBO(ワンズキューボ)

TOGAHOUSE
高性能 + デザイン + 住まい方 1,980万円〜ライフスタイルに合わせた理想の住まい。

本物の木にこだわる建材メーカーから生まれた、
自然素材で最小限のコスト+高品質を実現した
住宅「ワンズキューボ」。

箱が創出する、機能美の家。

住宅を購入の際に、はじめに思い描いた“憧れ”を少しずつ諦めていませんか?
長く快適に安心して住める高性能な住まい。
シンプルでありながらも自分色に染められるデザイン性。
木の温もりを肌で感じる本物の素材感。
そして、家族の繋がりや自分自身を豊にする住まい方。
これら一つ一つを大切にし、技術と知恵と感性を集結し、一つの住まいの形にしたワンズキューボ。

LVL(単板積層材)

最小限のコストで、安心して住むことができる家。

家の骨格には、強度・寸法安定性・耐久性に優れたLVL(単板積層材)を採用。木材の弱点を克服し、強みを増したまさにハイスペックな構造材と言えます。
それらLVLを緊結力に優れた専用の金物と組み合わせることで、一般的な在来工法と比較して、最大耐力で約1.5倍もの強度を発揮します。
独自の「JWOOD金物工法」を採用することで、木造軸組構造では困難とされていた「ワイド・超・空間」が実現しました。

ワンズキューボの特徴 FEATURE

  • 長く安心して住める高性能な家

    長期優良住宅(耐震は最高等級3)、認定低炭素住宅、省令準耐火仕様の高性能な家。

    ワンズキューボの特徴
  • 「TUBE」で光や風を取り込む空間

    建物内部と外部を繋ぐ「TUBE(筒状の抜け)」を建物内に配置し、光や風を取込み、視線領域を含めた周辺環境との調和を創出。

    ワンズキューボの特徴
  • ライフステージに合わせ自由に変化する間取り

    固定化された間取りではなく、住まい方に応じた自由な間仕切り壁の設置やライフステージの変化に伴う簡便な間取り変更が可能。

    ワンズキューボの特徴
  • オリジナル省施工システム

    コストダウン実現の為、住宅のコスト構成比で2番目に大きい労務工数を独自の施工システムと専用部材で合理的に工期短縮。

    ワンズキューボの特徴
  • 地球環境保全に貢献した家

    構造材、木質内装建材はニュージーランドの森林から最終製品までの一貫した出荷体制を確立したFSC®の森林認証製品で地球環境保全に貢献した家。

    ワンズキューボの特徴
  • 愛着が育まれる無垢の空間

    毎日触れる床、階段、キッチン等に無垢材を使用した愛着を育む家。

    ワンズキューボの特徴
  • 生活の利便性も考えた多彩なプラン

    限られた大きさの中で各空間ボリュームの適正化を図り、生活の利便性や住まいを愉しむ場所が創出されたプラン。

    ワンズキューボの特徴
  • コストダウンを図り1,800万円を実現

    これら全てを備えて建物本体価格1,980万円という販売価格を実現。

    ワンズキューボの特徴

オリジナル仕様 SPECIFICATION

  • 無垢キッチン 無垢キッチン

    使い込まれた道具にだけ宿る空気感。本物の素材だけが帯びてゆくまろやかさを、家族の成長とともに育みます。

  • 無垢の木の洗面台 無垢の木の洗面台

    無垢の木ならではのあたたかみをふんだんに生かした扉は、一緒に暮らし使っていく中で、ゆったりと変化していく表情や色合いも魅力です。

  • デザイン階段 デザイン階段

    木とアルミを組み合わせたモダンなデザイン。光や風、視線が抜ける開放感のある軽やかなデザインで明るい空間を実現。

  • 無垢フローリング 無垢フローリング

    苗木から育てたニュージーパインを贅沢に用いた無垢一枚物のフローリング。木目が美しく引き立つ浮造り仕上げを施し、木の質感を見た目でも素足でも楽しめます。

選べるプラン PLAN

  • Aプラン

    オープンキッチンスタイルのLDKはプランの領域を重ね合わせることで空間の広がりを感じさせてくれます。

    Aプラン
  • Bプラン

    独立したキッチンスペースとしつつも、LDとの隣接配置で程よいつながりを感じることができます。

    Bプラン
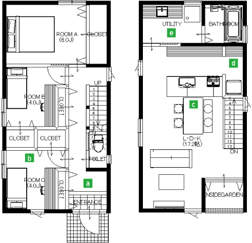
  • Cプラン

    「使うものを使う場所に」をコンセプトに、収納スペースを適所に配置した生活利便性の良い片づけ上手なプランです。

    Cプラン
  • Dプラン

    コンパクトな敷地にビルトインガレージ付き。趣味の場所にしたり、家族で利用したり、楽しみが広がるプランです。

    Dプラン
  • Eプラン

    仕切りのない大空間LDKは、家族が集まり、それぞれが好きな場所で好きな時間を楽しめるワンボックススタイルのゆとりを感じさせる住まいです。

    Eプラン
  • Fプラン

    リビングとダイニングキッチンのスペースをずらして配置することで、大空間でありながら、程よいつながりと独立を持ち合わせたプランです。

    Fプラン
  • Gプラン

    狭小間口対応プランです。隣地と接近しながらも採光と通風が確保でき、LDKから連続するインサイドガーデンからは視線の抜けを確保しつつ、内と外の空間の繋がりを大切にしています。

    Gプラン
  • Hプラン

    リビング・ダイニングを長手方向に配置し、空間に広さと奥行きを持たせ視線や空気の流れを感じることのできるプランです。26帖の大空間LDKは家族が自然と集まる団らんの場所となっています。

    Hプラン
  • 大屋根プラン

    1階のLDKと2階のホビールームを大きな吹抜けでつなぎ、開放感と家族のつながりを感じられるプランです。2階から吹抜けを見下ろせば家族とコミュニケーションが取れる住まいです。

    大屋根プラン
  • 平屋プラン

    リビングダイニングから続く内部の大きな土間が、LDKをより開放的で魅力的な空間へとしてくれます。小屋組みを活かした勾配天井が平屋だと感じさせない視線と風の通る気持ちの良いプランです。

    平屋プラン
長期優良住宅 + 省令準耐火 + 省エネ新基準 耐震等級3

詳しくは、東邦ガスライフソリューションズまでお問い合わせください。

お問い合わせ
トーガの家を宿泊体感しよう “泊まれる”モデルハウス、誕生。
お問い合わせ・資料請求
BACK TO TOP